Aller à :

  • Aller à la recherche
  • Aller au menu principal
  • Aller au contenu
0
  • Accueil
  • vente
  • location
  • IMMOBILIER PROFESSIONNEL
    • Vente
    • Location
  • Programmes neufs
  • Autres services
    • Gestion
    • Syndic
  • Contact
0
  1. Accueil
  2. Location pro
  3. St leonard
  4. Local commercial
Réf : 163
Local commercial
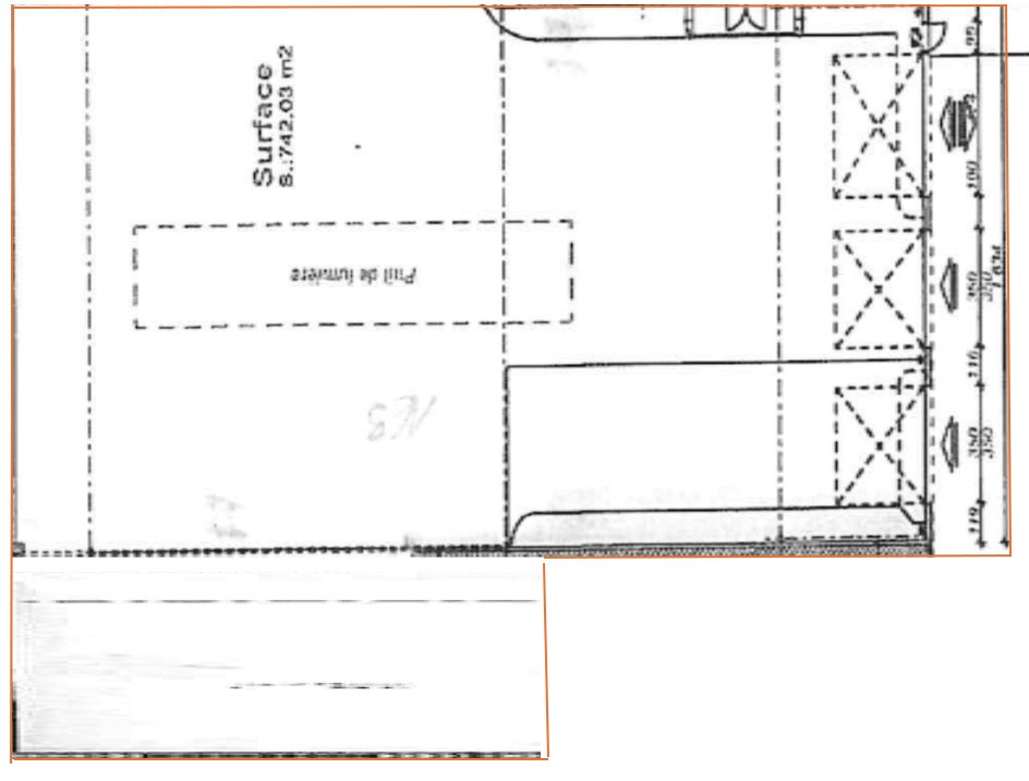
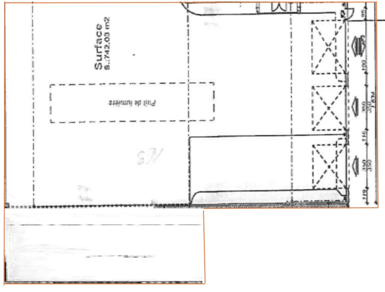
LOCAL COMMERCIAL DE 742 m² - MANDAT UNIQUE
5 416 € / mois HT - HC*

* Hors charges

LOCAL COMMERCIAL DE 742 m² - MANDAT UNIQUE Saint-Léonard (62360)

L'Agence de la Côte d'Opale vous propose à la location cette grande céllule commerciale de 742m² situé sur un axe très passant de 20 000 passages par jour.

Vous offrant 3 grandes vitrines. Positionnée entre plusieurs enseignes nationales et internationales avec un parking commun.

Pour plus d'informations n'hésitez pas à nous contacter.

  • Général
  • Détails +
  • Financier
  • Activité
  • DPE
  • Quartier
Caractérisque Valeurs
Type de transac Local commercial
Code postal 62360
Surface habitable (m²) 742 m²
Superficie (m²) 742
Caractérisque Valeurs
Mode de chauffage Autre
Type de chauffage Autre
Format de chauffage Individuel
Dimensions vitrines 20 mètres
Caractérisque Valeurs
Loyer HT 5 416 € / mois
Honoraires HT charge locataire 12 998,40 €
Dont état des lieux Non renseigné
Dépot de garantie 10 832 €
Bail bail commercial
Echéance du bail 2025-09-10
Caractérisque Valeurs
type d'activité - Divers - Presse - Vente à emporter - Ameublement - Electroménager - Radio TV Hi-fi - Salon de coiffure - Parfumerie - Esthétique - Maroquinerie - Cordonnerie - Chaussure - Optique - équipements de la personne - Librairie - Fleurs - Multiservice - Garage - Papeterie - Jardinerie - Imprimerie - Blanchisserie / teinturier - Salle de sports
DPE GES
  • Commerces et santé
  • Loisirs
  • Ecoles
  • Transports
  • Pratique
Cette offre
vous intéresse

* champs obligatoires

Les informations recueillies sur ce formulaire sont enregistrées dans un fichier informatisé par La Boite Immo agissant comme Sous-traitant du traitement pour la gestion de la clientèle/prospects de l'Agence / du Réseau qui reste Responsable du Traitement de vos Données personnelles. La base légale du traitement repose sur l'intérêt légitime de l'Agence / du Réseau. Elles sont conservées jusqu'à demande de suppression et sont destinées à l'Agence / au Réseau. Conformément à la loi « informatique et libertés », vous disposez des droits d’accès, de rectification, d’effacement, d’opposition, de limitation et de portabilité de vos données. Vous pouvez retirer votre consentement à tout moment en contactant directement l’Agence / Le Réseau. Consultez le site https://cnil.fr/fr pour plus d’informations sur vos droits. Si vous estimez, après avoir contacté l'Agence / le Réseau, que vos droits « Informatique et Libertés » ne sont pas respectés, vous pouvez adresser une réclamation à la CNIL. Nous vous informons de l’existence de la liste d'opposition au démarchage téléphonique « Bloctel », sur laquelle vous pouvez vous inscrire ici : https://www.bloctel.gouv.fr Dans le cadre de la protection des Données personnelles, nous vous invitons à ne pas inscrire de Données sensibles dans le champ de saisie libre.
Ce site est protégé par reCAPTCHA, les Politiques de Confidentialité et les Conditions d'Utilisation de Google s'appliquent.

Partager le bien
Nos outils
Imprimer Imprimer
Calculatrice financière

* Champ obligatoire

Partager l'annonce

* champs obligatoires

Les informations recueillies sur ce formulaire sont enregistrées dans un fichier informatisé par La Boite Immo agissant comme Sous-traitant du traitement pour la gestion de la clientèle/prospects de l'Agence / du Réseau qui reste Responsable du Traitement de vos Données personnelles. La base légale du traitement repose sur l'intérêt légitime de l'Agence / du Réseau. Elles sont conservées jusqu'à demande de suppression et sont destinées à l'Agence / au Réseau. Conformément à la loi « informatique et libertés », vous disposez des droits d’accès, de rectification, d’effacement, d’opposition, de limitation et de portabilité de vos données. Vous pouvez retirer votre consentement à tout moment en contactant directement l’Agence / Le Réseau. Consultez le site https://cnil.fr/fr pour plus d’informations sur vos droits. Si vous estimez, après avoir contacté l'Agence / le Réseau, que vos droits « Informatique et Libertés » ne sont pas respectés, vous pouvez adresser une réclamation à la CNIL. Nous vous informons de l’existence de la liste d'opposition au démarchage téléphonique « Bloctel », sur laquelle vous pouvez vous inscrire ici : https://www.bloctel.gouv.fr Dans le cadre de la protection des Données personnelles, nous vous invitons à ne pas inscrire de Données sensibles dans le champ de saisie libre.
Ce site est protégé par reCAPTCHA, les Politiques de Confidentialité et les Conditions d'Utilisation de Google s'appliquent.

Détail des diagnostics énergétiques
DPE GES
DPE vierge

Partager avec vos proches

Facebook Facebook
Messenger Messenger
Twitter Twitter
WhatsApp WhatsApp
LinkedIn LinkedIn
Copier le lien Copier le lien
Se connecter
Espace propriétaire
Page d'accueil

© 2026 | Tous droits réservés | Traduction powered by Google |

  • Nos honoraires
  • Plan du site
  • Mentions légales
  • Admin
  • Nos liens
  • Politique RGPD
  • LinkedIn

Comme beaucoup, notre site utilise les cookies

On aimerait vous accompagner pendant votre visite. En poursuivant, vous acceptez l'utilisation des cookies par ce site, afin de vous proposer des contenus adaptés et réaliser des statistiques !

Paramétrer

Statistiques de visites

Pour améliorer votre expérience, on a besoin de savoir ce qui vous intéresse !
Les données récoltées sont anonymisées.

?

Google Analytics

requis
?

Google Tag Mananger

requis
En savoir plus

Faites estimer votre bien par un professionnel

Estimer votre bien