Aller à :

  • Aller à la recherche
  • Aller au menu principal
  • Aller au contenu
0
  • Accueil
  • vente
  • location
  • IMMOBILIER PROFESSIONNEL
    • Vente
    • Location
  • Programmes neufs
  • Autres services
    • Gestion
    • Syndic
  • Contact
0
  1. Accueil
  2. Location pro
  3. Boulogne sur mer
  4. Local commercial
Réf : G00069
Local commercial
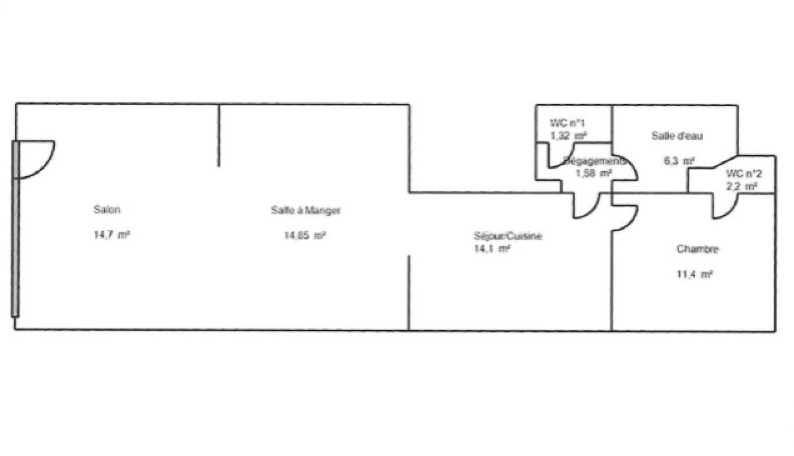
LOCAL COMMERCIAL de 66.45m²
415 € / mois NAT - HC*

* Hors charges

LOCAL COMMERCIAL de 66.45m² Boulogne-sur-Mer (62200)

L'Agence de la Côte d'Opale vous propose ce local commercial situé Grande Rue, dans le centre ville de Boulogne-sur-Mer.


D'une superficie de 66.45 m², il dispose:

D'une belle vitrine donnant sur l'acceuil, d'un espace bureau et d'une cuisine dans le prolongement, d'une grande pièce de stockage, d'une salle d'eau avec douche et de deux WC indépendant.

Il est équipé de l'eau, de l'électricité, et du tout à l'égout. Il est également raccordé à la fibre.


Libre sous 3 mois, n'hésitez pas à nous contacter rapidement pour le visiter !


Honoraires charge locataire : 20% H.T. du loyer annuel.

  • Général
  • Détails +
  • Copropriété
  • Financier
  • Activité
  • DPE
  • Quartier
Caractérisque Valeurs
Type de transac Local commercial
Code postal 62200
Surface habitable (m²) 66,45 m²
Vue Sur rue
Superficie (m²) 66.45
Caractérisque Valeurs
Mode de chauffage Electrique
Type de chauffage Radiateur
Format de chauffage Individuel
Année de construction 1920
Caractérisque Valeurs
Copropriété NON
Caractérisque Valeurs
Loyer 415 € / mois
Honoraires charge locataire 996 €
Dont état des lieux 300 €
Dépot de garantie 830 €
Charges locatives (provision donnant lieu à régularisation annuelle) 110 €
Bail bail commercial
Caractérisque Valeurs
type d'activité - Divers
DPE GES
  • Commerces et santé
  • Loisirs
  • Ecoles
  • Transports
  • Pratique
Cette offre
vous intéresse

* champs obligatoires

Les informations recueillies sur ce formulaire sont enregistrées dans un fichier informatisé par La Boite Immo agissant comme Sous-traitant du traitement pour la gestion de la clientèle/prospects de l'Agence / du Réseau qui reste Responsable du Traitement de vos Données personnelles. La base légale du traitement repose sur l'intérêt légitime de l'Agence / du Réseau. Elles sont conservées jusqu'à demande de suppression et sont destinées à l'Agence / au Réseau. Conformément à la loi « informatique et libertés », vous disposez des droits d’accès, de rectification, d’effacement, d’opposition, de limitation et de portabilité de vos données. Vous pouvez retirer votre consentement à tout moment en contactant directement l’Agence / Le Réseau. Consultez le site https://cnil.fr/fr pour plus d’informations sur vos droits. Si vous estimez, après avoir contacté l'Agence / le Réseau, que vos droits « Informatique et Libertés » ne sont pas respectés, vous pouvez adresser une réclamation à la CNIL. Nous vous informons de l’existence de la liste d'opposition au démarchage téléphonique « Bloctel », sur laquelle vous pouvez vous inscrire ici : https://www.bloctel.gouv.fr Dans le cadre de la protection des Données personnelles, nous vous invitons à ne pas inscrire de Données sensibles dans le champ de saisie libre.
Ce site est protégé par reCAPTCHA, les Politiques de Confidentialité et les Conditions d'Utilisation de Google s'appliquent.

Partager le bien
Nos outils
Imprimer Imprimer
Calculatrice financière

* Champ obligatoire

Partager l'annonce

* champs obligatoires

Les informations recueillies sur ce formulaire sont enregistrées dans un fichier informatisé par La Boite Immo agissant comme Sous-traitant du traitement pour la gestion de la clientèle/prospects de l'Agence / du Réseau qui reste Responsable du Traitement de vos Données personnelles. La base légale du traitement repose sur l'intérêt légitime de l'Agence / du Réseau. Elles sont conservées jusqu'à demande de suppression et sont destinées à l'Agence / au Réseau. Conformément à la loi « informatique et libertés », vous disposez des droits d’accès, de rectification, d’effacement, d’opposition, de limitation et de portabilité de vos données. Vous pouvez retirer votre consentement à tout moment en contactant directement l’Agence / Le Réseau. Consultez le site https://cnil.fr/fr pour plus d’informations sur vos droits. Si vous estimez, après avoir contacté l'Agence / le Réseau, que vos droits « Informatique et Libertés » ne sont pas respectés, vous pouvez adresser une réclamation à la CNIL. Nous vous informons de l’existence de la liste d'opposition au démarchage téléphonique « Bloctel », sur laquelle vous pouvez vous inscrire ici : https://www.bloctel.gouv.fr Dans le cadre de la protection des Données personnelles, nous vous invitons à ne pas inscrire de Données sensibles dans le champ de saisie libre.
Ce site est protégé par reCAPTCHA, les Politiques de Confidentialité et les Conditions d'Utilisation de Google s'appliquent.

Détail des diagnostics énergétiques
DPE GES
DPE en cours

Partager avec vos proches

Facebook Facebook
Messenger Messenger
Twitter Twitter
WhatsApp WhatsApp
LinkedIn LinkedIn
Copier le lien Copier le lien
Se connecter
Espace propriétaire
Page d'accueil

© 2026 | Tous droits réservés | Traduction powered by Google |

  • Nos honoraires
  • Plan du site
  • Mentions légales
  • Admin
  • Nos liens
  • Politique RGPD
  • LinkedIn

Comme beaucoup, notre site utilise les cookies

On aimerait vous accompagner pendant votre visite. En poursuivant, vous acceptez l'utilisation des cookies par ce site, afin de vous proposer des contenus adaptés et réaliser des statistiques !

Paramétrer

Statistiques de visites

Pour améliorer votre expérience, on a besoin de savoir ce qui vous intéresse !
Les données récoltées sont anonymisées.

?

Google Analytics

requis
?

Google Tag Mananger

requis
En savoir plus

Faites estimer votre bien par un professionnel

Estimer votre bien